提供達標排放一站式解決服務
服務電話:
0536-6438321
聯系人:李經理
電話:135-8917-7011
聯系人:徐經理
電話:135-8917-8002
QQ:1742075678
郵箱:1742075678@qq.com
地址:山東省諸城市密州街道工業大道






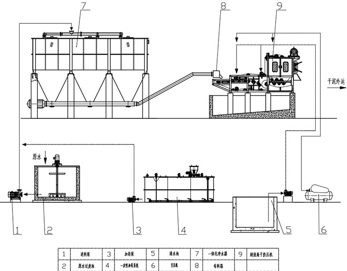
|
型號 |
洗沙污泥出料量(含水率30%以下)(T/h) |
外形尺寸(m)括弧內為不加護罩尺寸 |
主電機功率 |
箱體重量(t) |
|
CXGY1000-SA |
2.5-4.5 |
10×1.9(1.5)×3.35 |
7.5+2.2 |
6 |
|
CXGY1500-SA |
4.5-6.5 |
10×2.4(1.9)×3.35 |
11+3 |
8 |
|
CXGY2000-SA |
6.5-8.5 |
10×2.9(2.5)×3.35 |
11+3 |
11 |
|
CXGY2500-SA |
8.5-10.5 |
12×3.4(3.1)×3.35 |
15+4 |
14.5 |
|
CXGY3000-SA |
10.5-12.5 |
12×3.9(3.5)×3.35 |
15+5.5 |
17 |
|
CXGY3500-SA |
12.5-14.5 |
16×4.4(3.9)×3.35 |
15+7.5 |
22 |


服務電話:0536-6438321
聯系人:李經理 135-8917-7011
郵箱:1742075678@qq.com
地址:山東省諸城市密州街道工業大道